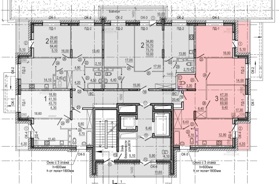
Трёхкомнатная квартира с двумя лоджиями и двумя санузлами.
Новый восемнадцатиэтажный жилой дом всего на 58 квартир в десяти минутах ходьбы от центра в живописном и экологически чистом месте города Калуга.
Наличие автономной крышной котельной значительно сэкономит средства, затраченные на коммунальные услуги, и обеспечит уют и тепло в каждой квартире, а подземная парковка решит вопрос безопасности личного транспорта и дефицита парковочных мест у дома.
Надежность и качество дома обеспечат монолитно-кирпичное строительство и экологически чистые материалы.
В продаже 3-комн. квартира 85,2 кв.м. (общая площадь без учёта лоджий) с изолированными комнатами 17,3 + 16 + 14 кв.м. и кухней 12,9 кв.м. Два санузла. Вместительная прихожая с местом под шкаф-купе. Две лоджии 5,1 + 4,3 кв.м. Высота потолков 3 м.
Площадь лоджий в подарок.
Возможность приобрести машино-место на подземной парковке.
Вблизи жилого дома расположены поликлиника, магазины, рынок, аптеки, школы, детские сады, детская спортивная школа олимпийского резерва "Юность".









































