3кк, 72,6 м, Академический
| Стоимость | 7 742 000 |
|---|---|
| Ремонт | Требует ремонта |
| Балкон | Лоджия |
| Год постройки | 2023 |
| Отопление | Индивидуальное |
| Санузел | Раздельный |
| Комнат в квартире | 3 |
| Площадь, кв.м. | 72.6 |
| Жилая площадь | 37.8 |
| Площадь кухни, кв.м. | 13.1 |
| Этаж | 6 |
| Этажность | 9 |
| Материал стен | Кирпич |
| Тип комнат | раздельные |
| Состояние | Без отделки |
| Населенный пункт | Калуга |
|---|---|
| Район города | Ленинский |
| Микрорайон | микрорайон Правый Берег |
| Улица | проезд 3-й Академический |
| Номер дома | 6 |
В продаже 3-комнатная квартира в кирпичном доме!
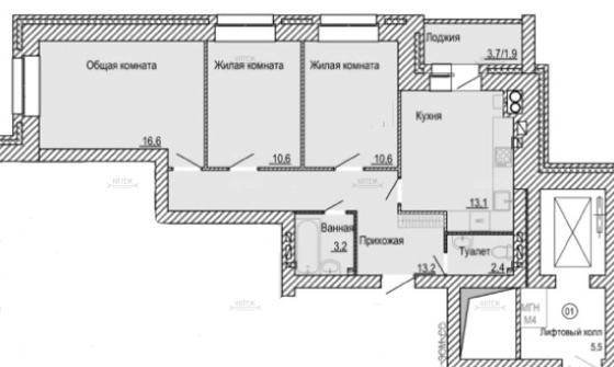
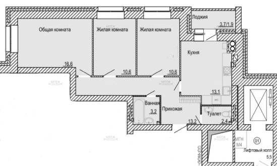
Трёхкомнатная квартира площадью 72,6 кв. м. в микрорайоне Правобережье с кухней 13,1 кв.м. и лоджией 4,1 кв.м. и три раздельные комнаты по 16,6, 10,6 и 10,6 кв.м.
- динамично развивающийся район города
- кирпичный дом
- ИНДИВИДУАЛЬНОЕ ОТОПЛЕНИЕ!
- ДОМ СДАН!
В квартире выполнена предчистовая отделка: стяжка пола, штукатурка стен, электрика, розетки, выключатели, установлены батареи и качественная металлическая дверь. Установлено видеонаблюдение дворовой территории и шлагбаум.
Дом находится рядом с необходимой для комфортного проживания инфраструктурой - детские сады, школы, торговые центры, остановка общественного транспорта, спортивные комплексы, магазины с товарами первой необходимости.
Звоните, записывайтесь на просмотр!
Агентство недвижимости Китеж - профессионально решаем задачи по недвижимости с 1991 года.

















