7-к. 280 кв.м. Богородицкая
| Стоимость | 15 900 000 |
|---|---|
| Ремонт | Требует ремонта |
| Балкон | Нет |
| Год постройки | 2014 |
| Отопление | Индивидуальное |
| Санузел | Более двух |
| Вид из окна | во двор и на улицу |
| Тип дома cian | Кирпичный |
| Комнат в квартире | 7 |
| Площадь, кв.м. | 280 |
| Жилая площадь | 161.1 |
| Площадь кухни, кв.м. | 24.3 |
| Этаж | 2 |
| Этажность | 3 |
| Материал стен | Кирпич |
| Тип комнат | раздельные |
| Состояние | Черновая отделка |
| Населенный пункт | Калуга |
|---|---|
| Район города | Ленинский |
| Микрорайон | микрорайон Правый Берег |
| Улица | улица Богородицкая |
| Номер дома | 32А |
4-уровневая квартира 280 кв.м. в закрытом 4-квартирном доме.
Правый берег, улица Богородицкая. Одно из самых престижных мест города.
Кирпичный 4-квартирный дом 2014 года постройки с закрытой территорией.
Квартира с отдельным входом, в четырёх уровнях: полноценный цокольный, первый, второй, мансардный этаж. Плюс чердачное помещение. На всех уровнях высокие потолки 2,8 - 3 м.
Цокольный этаж: комната 34,8 кв.м., котельная 16,8 кв.м., подсобное помещение 7,2 кв.м.
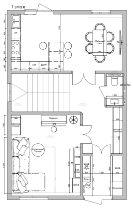
Первый этаж: прихожая 6,8 кв.м., комната 22,2 кв.м., кухня-столовая 24,3 кв.м. с выходом на террасу и задний двор, холл с местом под шкаф-купе, гостевой санузел.
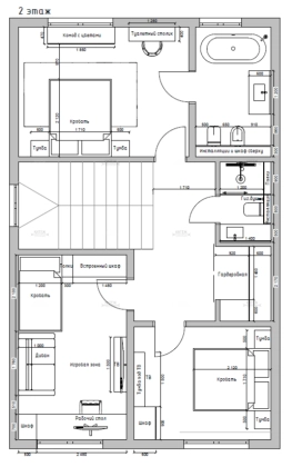
Второй этаж: мастер-спальня 16,7 кв.м. со своим большим санузлом 7,3 кв.м. с окном, две комнаты 15,1 + 11,8 кв.м., ещё один санузел, гардеробная.
Мансардный этаж: две просторные комнаты 35,3 + 24,8 кв.м.
В квартире выполнена стяжка, штукатурка, электроразводка, полная разводка отопления.
Разработан полный дизайн проект всей квартиры с визуализацией и подробными планами по электрике, напольным покрытиям, расстановке мебели и т.д., вплоть до сметы по материалам и местам закупки. Примеры визуализаций есть среди фото.
Коммуникации все центральные: центральный водопровод, канализация, газ, электричество, интернет.
К квартире идёт личный участок 4,63 сотки, в собственности, с выходом в лес, воротами, выложенной плиткой площадкой для парковки машин. Также несколько машин можно запарковать за пределами участка, там парковочные карманы тоже выложены плиткой.
Инфраструктура: в радиусе 10 минут пешком школа, 2 детских сада, торговый центр, остановки общественного транспорта, магазины, пункты выдачи, аптеки, кафе, отделения банков и пр.
Ждём Ваших звонков и приглашаем на просмотр!
Агентство недвижимости Китеж - профессионально решаем задачи по недвижимости с 1991 года.



























































