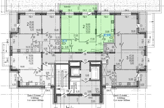
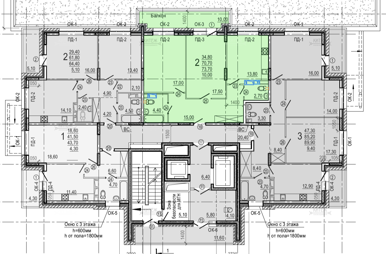
2-к. 70,7 м², 7/18 эт. Болдина
| Стоимость | 7 777 000 |
|---|---|
| Название ЖК | Болдина 12 |
| Стадия строительства | дом построен, но не сдан |
| Год постройки | 2025 |
| Площадь, кв.м. | 70.7 |
| Площадь кухни, кв.м. | 13.8 |
| Жилая площадь | 34.8 |
| Этаж | 7 |
| Этажность | 18 |
| Комнат в квартире | 2 |
| Материал стен | кирпично-монолитный |
| Отопление | Крышная котельная |
| Тип сделки новостройки | переуступка |
| Статус Недвижимости Авито | Квартира |
| Тип продажи Циан | Договор уступки права требования |
| Право собственности | Посредник |
| Тип парковки | Подземная |
| Ремонт | Требует ремонта |
| Способ связи avito | По телефону и в сообщениях |
| Узаконена ли планировка | Есть |
| Тип дома cian | Монолитный |
| Населенный пункт | Калуга |
|---|---|
| Район города | Ленинский |
| Микрорайон | Спартак |
| Улица | улица Болдина |
| Номер дома | 12 |
Двухкомнатная квартира с большой лоджией и двумя санузлами.
Новый восемнадцатиэтажный жилой дом всего на 58 квартир возводится в десяти минутах ходьбы от центра в живописном и экологически чистом месте города Калуга.
Наличие автономной крышной котельной значительно сэкономит средства, затраченные на коммунальные услуги, и обеспечит уют и тепло в каждой квартире, а подземная парковка решит вопрос безопасности личного транспорта и дефицита парковочных мест у дома.
Надежность и качество дома обеспечат монолитно-кирпичное строительство и экологически чистые материалы.
В продаже 2-комн. квартира 70,7 кв.м. (общая площадь без учёта лоджии) с изолированными комнатами 17,5 + 17 кв.м. и кухней 13,8 кв.м. Два санузла. Вместительная прихожая 15 кв.м. Лоджия 10 кв.м.! Высота потолков 3 м.
Площадь лоджии в подарок.
Возможность приобрести машино-место на подземной парковке.
Полная безопасность и защищённость покупателя: продажа через эскроу-счета.
Вблизи жилого дома расположены поликлиника, магазины, рынок, аптеки, школы, детские сады, детская спортивная школа олимпийского резерва "Юность".





































